Волосовский р-н, КП Новосельцево-2

Построен
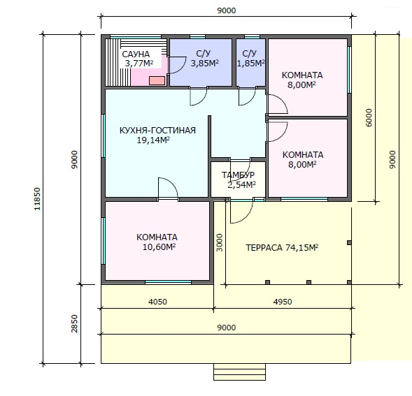
  • Габариты дома
    9,0х12,0
  • Общая площадь
    108 м2
  • Жилая площадь
    66 м2
Этажей: 1
Спален: 3
Санузла: 1
Заказать рассчет проекта
Характеристики

Стоимость дома с доставкой и сборкой на участке 3700000рублей. (Цена указана без стоимости фундамента).

Дом общий размер 9,0х12,0м каркасный одноэтажный с террасой.

Высота первого этажа –2,8м.

Высота в коньке – 1,0м.

Крыша – двухскатная.

1

Дополнительная обвязка

Брус не строганный

150х150мм.

2

Лаги дома

Доска обрезная

50 х 200 мм (шаг 0,59м)

3

Полы черновые

Доска обрезная

20 мм.

4

Полы чистовые 1 этаж

Плита Квик Дек 22мм (шип-паз) по обрешётке сухая строганная доска 20мм (шаг через доску)

5

Стены дома – каркасный дом

Перегородки

Доска обрезная

Доска обрезная

150 х 50 мм (шаг 0,59м)

100 х 50мм (шаг 0,59м)

6

Наружная отделка

Виниловый сайдинг Дёке + контробрещётка + плита Белтермо 20мм (шип-паз)

7

Внутренняя отделка

Стены и перегородки - контробрешётка сухой строганный брусок 20х45мм (шаг 0,59м по стойкам);

Потолок – контобрешётка сухой строганный брусок 20х45мм (шаг 0,4м).

8

Потолочные балки

Доска обрезная

200 х 50 мм (шаг 0,59м)

9

Стропильная система

Доска обрезная

200 х 50 мм (шаг 0,59м)

10

Утепление дома

 

Утепление перегородок

Роквул Скандик (стены),

Роквул Скандик (пол, потолок)

Роквул Скандик

150мм.

200мм

100мм

11

Парогидроизоляция

Изоспан

АМ, В (скотч Дельта для пароизоляции)

12

Окна ПВХ двухкамерные П/О со всеми комплектующими REHAU Blitz (белые)

Поворотно-откидные

                           8шт.

13

Двери межкомнатные

Проёмы

0,89х2,08м

14

Дверь входная ПВХ двухкамерная

1шт. полностью стеклянная

15

Кровля / поднебесники

Металлочерепица 0,45мм + контробрешётка + Изоспан АМ / 50см подшиваем перфорированными софитами

16

Сборка каркаса

На металлические уголки и пластины

(барабанные гвозди, саморезы жёлтые)

17

Антисептирование основания дома (двойная обвязка, лаги, черновые полы)

                  есть

В ПОДАРОК!!!

18

Строительная бытовка 2х3м + 4 блока

                   есть

В ПОДАРОК!!!

19

Террасы под общей крышей и без крыши

Полы – строганная доска 36х140мм «ВЕЛЬВЕТ» с зазором, ограждение – строганная доска 20х96мм (вертикально, шаг через доску) / скаты крыши – перфорированными софитами

20

Сетка от грызунов металлическая под черновой пол

включено

21

Водосточная система Дёке Премиум пластиковая с установкой

включено

22

«КИВЫ» вентиляция в стену (3шт)

включено

23

Вентиляционные выводы через крышу ViLPE (110мм, 125мм) с/у и кухня

включено

24

Цоколь (зашиваем сваи) профлист

включено

                Весь обрезной материал КАМЕРНОЙ СУШКИ!!!

 

  • Габариты дома
    9,0х12,0
  • Количество спален
    3
  • Терасса
    2
  • Общая площадь
    108 м2
  • Жилая площадь
    66 м2
  • Высота 1-го этажа
    2,8 м
  • Высота 2-го этажа
    0 м
  • Выстота в коньке крыши
    1,0 м
Консультация с нашим экспертом
Поговорите с нашим специалистом — так мы быстрее поймём ваши задачи и найдём подходящее решение
Прикрепить файл
У нас есть другие варианты площади и планировки этого проекта!
Закажите рассчет проекта и мы подберем подходящий вам вариант.
Другие готовые объекты
Кировский район,
пос. Синявино
СНТ "ПетроКрепость"
Построен
от 02.01.2020
Смотреть все
Предыдущий объект Следующий объект
*/?>