Выборгский р-н, пос. Рощино

Построен
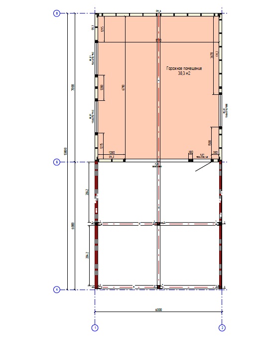
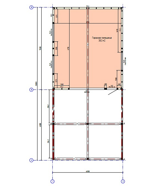
  • Габариты дома
    6,0х13,0
  • Общая площадь
    78 м2
  • Жилая площадь
    42 м2
Этажей: 1
Спален: 0
Санузла: 0
Заказать рассчет проекта
Характеристики

Стоимость холодного контура гаража с доставкой и сборкой 2200000рублей

Размер сооружения общий (м)

13,0

6,0

Высота конька (м)

0,8 м от

Толщина каркаса стен (мм)

145х45 (шаг каркаса 0,59м)

в угловых соединениях ( раскосы, ригеля, доска 145х45мм)

Наименование материала

материал хвойных пород КАМЕРНОЙ СУШКИ

Высота потолка (м)

Нижняя точка по силовому каркасу

2950

Внешняя отделка:

Стены наружные отделка холодного контура

Имитатор бруса – горизонтально Скандинавский профиль 20 х 145 х 6000 мм (цвет – RALL 606X) + контррейка строганная камерной сушки 20х45мм

Фронтоны холодного контура

Имитатор бруса – горизонтально Скандинавский профиль 20 х 145 х 6000 мм (цвет – RALL 606X) + контррейка строганная камерной сушки 20х45мм

Утеплитель:                                                                                           

утепление стен (мм)

НЕТ

-

утепление пола (мм)

НЕТ

-

утепление перекрытия потолка (мм)

НЕТ

-

Утепление перегородок

НЕТ

-

Технические размеры:

Лежень (мм)

145х45

камерной сушки

Коньковая балка согласно проекту

LVL

150 х 300 мм

Стропила (размер бруса) (мм)

195х45 шаг 0,59м

камерной сушки

Ширина поднебесников (см)

500 мм

Обшивка поднебесников холодного контура

Строганная доска, камерной сушки, 22 х 95 х 6000 мм (цвет - RAL L487)

Внешние наличники, углы

Строганная доска, камерной сушки, 22 х 95 х 6000 мм (цвет - RAL L487)

Ветро-влаго-защита

Ондутис Смарт АМ

Внутренняя отделка:

Пол

НЕТ

Обрешетка потолка

НЕТ

Контр - рейка стен (по всем стойкам каркаса)

НЕТ

Кровля:

Вид кровли

Согласно проекта (приложение № 2)

покрытие кровли

Фальцевая кровля Grand Line 0,45мм (RAL - 7024) + контробрешётка, брусок 45х45мм.

гидроизоляция

Ондутис SMART AM

Двери:

 

Наименование

Кол-во (шт.)

Размер (м) (ш/в)

Дверь ПВХ – входная

ПВХ

По проекту

0,86х2,05м

Двери межкомнатные

проёмы

По проекту

0,89х2,09м

Окна:

 

Кол-во

Наименование

Окна и Дверь ПВХ REHAU стеклопакеты однокамерные с отливами 150мм, москитными сетками. Цвет белый, профиль 60мм

По проекту

окон ПВХ (согласно ПРОЕКТА)

Бытовка + 4 блока:                                                                                                  есть (В ПОДАРОК)

Бытовка (размер) (м)

2,00

3,00

Электрика в бытовке

нет

Терраса - навес                                                                                             есть 1 шт. (согласно проекта)

Крыша террасы

Покрытие как на основной кровле дома

Опорные столбы и балки

Строганный брус 140 х 140 мм

Балки перекрытия и коньковая балка

Брус LVL 150 х 300 мм, согласно проекту

Пол террасы

НЕТ

Потолок террасы

НЕТ

Отделка ограждения террасы

НЕТ

Антисептирование основания гаража - (лежень) методом промазывания.

есть

включено

Водосточная система Дёке пластиковая (цвет - 7024)

есть

включено

Снегозадержатели Гранд Лайн металлические RAL – 7024)

есть

включено

Сборка каркаса на строительные гвозди (добавляем металлические усиленные уголки, пластины, крепим на жёлтые саморезы)

есть

включено

 

  • Габариты дома
    6,0х13,0
  • Количество спален
    0
  • Терасса
    1
  • Общая площадь
    78 м2
  • Жилая площадь
    42 м2
  • Высота 1-го этажа
    2,95 м
  • Высота 2-го этажа
    0 м
  • Выстота в коньке крыши
    0,8 м
Описание
Стоимость холодного контура гаража с доставкой и сборкой 2200000рублей
Консультация с нашим экспертом
Поговорите с нашим специалистом — так мы быстрее поймём ваши задачи и найдём подходящее решение
Прикрепить файл
У нас есть другие варианты площади и планировки этого проекта!
Закажите рассчет проекта и мы подберем подходящий вам вариант.
Другие готовые объекты
Кировский район,
пос. Синявино
СНТ "ПетроКрепость"
Построен
от 02.01.2020
Смотреть все
Предыдущий объект Следующий объект
*/?>