Всеволожский р-н, массив Грузино

Строится
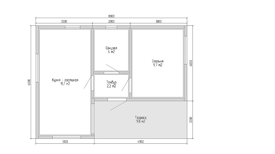
  • Габариты дома
    6,0х8,0
  • Общая площадь
    48 м2
  • Жилая площадь
    38 м2
Этажи: 1
Спальни: 1
Санузлы: 1
Заказать рассчет проекта
Характеристики

Размер сооружения общий (м)

8,0

6,0

Высота конька (мм)

1000 мм от потолочного перекрытия

Толщина каркаса стен (мм)

145х45 (шаг каркаса 0,59м)

в угловых соединениях ( раскосы, ригеля, доска 145х45мм)

Наименование материала

Материал - строганный хвойных пород КАМЕРНОЙ СУШКИ

Высота потолка (мм)

Первый этаж

2645 мм

Внешняя отделка:

Стены наружные

Имитация бруса СКАНДИНАВСКИЙ ПРОФИЛЬ толщиной 20мм (камерной сушки) хвойных пород. Монтаж горизонтально. Под имитацию выполняется контр - рейка 20х45мм. МДВП Белтермо ТОР 20 мм

Фронтоны

Имитация бруса СКАНДИНАВСКИЙ ПРОФИЛЬ толщиной 20мм (камерной сушки) хвойных пород. Монтаж горизонтально. Под имитацию выполняется контр - рейка 20х45мм. МДВП Белтермо ТОР 20 мм

Утеплитель:                                                                                            

Утепление стен (мм)

150

Кнауф ТС 34

Утепление пола (мм)

200

Кнауф ТС 34

Утепление потолочного перекрытия (мм)

200

Кнауф ТС 34

Утепление перегородок

100

Кнауф ТС 34

Технические размеры:

Лаги (на террасе) (мм)

195х45 шаг 590

камерной сушки

Перекрытие пола (мм)

195х45 шаг 590

камерной сушки

Межэтажное перекрытие (мм)

195х45 шаг 590

камерной сушки

Обвязка пакет из 3 досок (мм)

145 х 45 к оголовкам свай

камерной сушки

Стропила (размер бруса) (мм)

145х45 шаг 590

камерной сушки

Ширина поднебесников (см)

500 мм

Обшивка поднебесников

Строганная доска сечением 20x95 мм

Внешние наличники, углы

Строганная доска сечением 20x95 мм

Ветро-влаго-защита / Пароизоляция

Ондутис Смарт АМ / Ондутис ПК 150 и Изоспан В (скотч для пароизоляции)

Внутренняя отделка:

Предчистовое покрытие пола первый этаж и мансардный этаж

Строганная доска, сухая, 22 х 95 х 6000 мм, с шагом 100 (мм) + Шпунтованная влагостойкая плита Quick Deck 22 мм

Обрешетка потолка

Строганная рейка, сухая, 20 х 45 х 6000 мм, поддержание утеплителя

Контр - рейка стен (по всем стойкам каркаса)

Строганная рейка, сухая, 20 х 45 х 6000 мм

Кровля:

Вид кровли

Двухскатная простая

Покрытие кровли

Металлочерепица 0,45мм – цвет 7024

гидроизоляция / вентиляция кровли

Ондутис SMART AM/вентиляционные решётки во фронтонах

Двери:

 

Наименование

Кол-во (шт.)

Размер (м) (ш/в)

Дверь входная АРГУС-ТЕРМО

металлическая

1

0,86х2,05м

Двери межкомнатные

проёмы

По проекту

0,89х2,09м

Перегородки:

Перегородки

каркасные утеплённые 100мм (каркас перегородок доска 45х95мм, камерной сушки)

Обшивка перегородок

Строганная рейка, сухая 20 х 45 х 6000 (мм)

Окна:

 

Кол-во

Наименование

Окна ПВХ REHAU BLITZ стеклопакеты двухкамерные, с подоконниками 250мм, отливами 150мм, москитными сетками. Цвет белый, профиль 60мм

По проекту

окон ПВХ (согласно ПРОЕКТА)

Ступени при входе

есть (приставные, согласно проекта)

Бытовка + 4 блока:                                                                                                  есть (В ПОДАРОК)

Бытовка (размер) (м)

2,00

3,00

Электрика в бытовке

нет

Терраса                                                                                                 Под основной кровлей с домом

Крыша террасы

Под основной кровлей с домом

Пол террасы

Террасная доска – хвоя – вельвет, толщиной 35 мм

Потолок террасы

Ровный - строганная доска сечением 20x95 мм

Столбы и верхняя обвязка

Сшитая в три ряда строганная вальцованная доска 44х142мм

Отделка ограждения террасы

сухая строганная доска 45х145мм (горизонтально в 4 ряда)

Антисептирование основания дома - (обвязка, лаги, черновые полы) методом промазывания.

есть

включено

Заводская покраска наружной отделки фасада дома – имитатор бруса 145 х 20 мм RAL - ; строганная доска 20 х 95 - RAL

есть

включено

Металлическая сетка от грызунов укладываем на черновой пол

есть

включено

Сборка каркаса на строительные гвозди (добавляем металлические усиленные уголки, пластины, крепим на жёлтые саморезы)

есть

включено



  • Габариты дома
    6,0х8,0
  • Количество спален
    1
  • Терасса
    1
  • Общая площадь
    48 м2
  • Жилая площадь
    38 м2
  • Высота 1-го этажа
    2,65 м
  • Высота 2-го этажа
    0 м
  • Выстота в коньке крыши
    1,0 м
Описание
Стоимость тёплого контура дома с доставкой и сборкой 2350000рублей.
Консультация с нашим экспертом
Поговорите с нашим специалистом — так мы быстрее поймём ваши задачи и найдём подходящее решение
Напишите Кириллу (нашему архитектору) в Max или Telegram
У нас есть другие варианты площади и планировки этого проекта!
Закажите рассчет проекта и мы подберем подходящий вам вариант.
Другие готовые объекты