Сланцевский р-н, деревня Гостицы

Построен
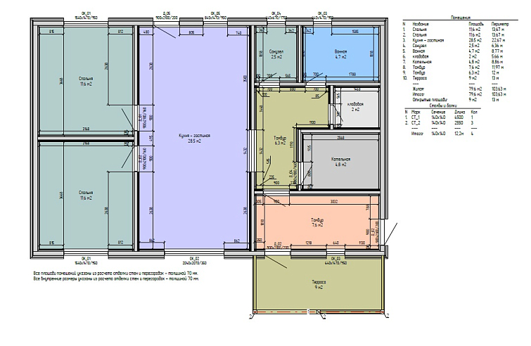
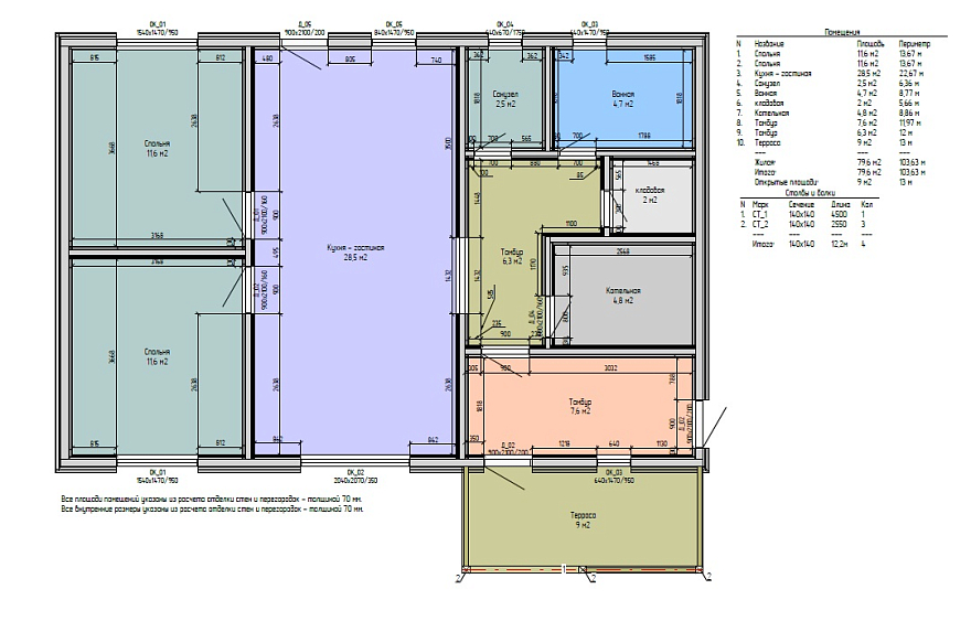
  • Габариты дома
    8,0х12,0
  • Общая площадь
    105 м2
  • Жилая площадь
    96 м2
Этажей: 1
Спален: 2
Санузла: 1
Заказать рассчет проекта
Характеристики

Стоимость теплого контура дома с доставкой и сборкой 5490000рублей.

Размер сооружения общий (м)

12,0

10,0

Высота конька (м)

1,4 м от потолочного перекрытия

Толщина каркаса стен наружных (мм)

145х45 (шаг каркаса 0,59м)

в угловых соединениях ( раскосы, ригеля, доска 145х45мм)

Наименование материала

материал хвойных пород КАМЕРНОЙ СУШКИ

Высота потолка (м)

по силовому каркасу

2950

Внешняя отделка:

Стены наружные

Имитатор бруса - вертикально, тонкопильная скандинавская доска камерной сушки 20 х 135 х 6000 мм (цвет – RALL 7043) + обрешетка строганный брусок 45 х 45мм + контррейка строганная камерной сушки 20х45мм + Белтермо 20 мм

Фронтоны

Имитатор бруса - вертикально, тонкопильная скандинавская доска камерной сушки 20 х 135 х 6000 мм (цвет – RALL 7043) + обрешетка строганный брусок 45 х 45мм + контррейка строганная камерной сушки 20х45мм + Белтермо 20 мм

Утеплитель:                                                                                           

утепление стен (мм)

150

Роквул Скандик

утепление пола (мм)

200

Роквул Скандик

утепление перекрытия потолка (мм)

200

Роквул Скандик

Утепление несущих перегородок (мм)

150

Роквул Скандик

Утепление перегородок (мм)

100

Роквул Скандик

Технические размеры:

Лаги (на террасе) (мм)

195х45 шаг 0,59м

камерной сушки

Перекрытие пола (мм)

195х45 шаг 0,59м

камерной сушки

Межэтажное перекрытие (мм)

195х45 шаг 0,59м

камерной сушки

Обвязка из бруса первый венец (мм)

150 х 200 по всем оголовкам свай

камерной сушки

Стропила (размер бруса) (мм)

195х45 шаг 0,59м

камерной сушки

Ширина поднебесников (см)

500 мм

Обшивка поднебесников

Строганная доска, камерной сушки, 22 х 95 х 6000 мм (цвет - фиксируется дополнительным соглашением)

Внешние наличники, углы

Строганная доска, камерной сушки, 22 х 95 х 6000 мм (цвет - фиксируется дополнительным соглашением)

Ветро-влаго-защита / Пароизоляция

Ондутис Смарт АМ / Ондутис ПК 150 и Изоспан В (скотч для пароизоляции)

Внутренняя отделка:

Пол

Строганная доска, сухая, 22 х 95 х 6000 мм, с шагом 100 (мм) + Шпунтованная влагостойкая плита Quick Deck 22 мм

Обрешетка потолка

Строганная доска, сухая, 22 х 95 х 6000 мм, с шагом 300 (мм)

Контр - рейка стен (по всем стойкам каркаса)

Рейка строганная камерной сушки 20 х 45мм

Кровля:

Вид кровли

Согласно проекта (приложение № 2)

покрытие кровли

металлочерепица 0,45мм (RAL – 7024 серый графит) + контробрешётка брусок 45х45мм.

гидроизоляция / вентиляция кровли

Ондутис SMART AM/вентиляционные решётки

Двери:

 

Наименование

Кол-во (шт.)

Размер (м) (ш/в)

Дверь входная АРГУС-ТЕРМО

металлическая

2 шт.

0,86х2,05м

Дверь ПВХ - балконная

ПВХ

По проекту

0,86х2,05м

Двери межкомнатные

проёмы

По проекту

0,89х2,09м

Перегородки:

Перегородки

каркасные утеплённые 100мм (каркас перегородок доска 45х95мм, камерной сушки)

Обшивка перегородок

Строганная рейка, сухая 20 х 45 х 6000 (мм)

Окна:

 

Кол-во

Наименование

Окна и Дверь ПВХ REHAU BLITZ стеклопакеты двухкамерные и дверь ПВХ, с подоконниками 250мм, отливами 150мм, москитными сетками. Цвет белый, профиль 60мм

По проекту

окон ПВХ (согласно ПРОЕКТА)

По проекту

дверь бвлконная (согласно ПРОЕКТА)

Лестница

нет

Ступени при входе

есть (приставные, согласно проекта)

Бытовка + 4 блока:                                                                                                  есть (В ПОДАРОК)

Бытовка (размер) (м)

2,00

3,00

Электрика в бытовке

нет

Терраса                                                                                                 есть 1 шт. (согласно проекта)

Крыша террасы

Покрытие как на основной кровле дома

Пол террасы

сухая строганная доска 36х140мм "ВЕЛЬВЕТ" с заводской покраской террасным маслом цвет - 7024 (укладываем с зазором)

Потолок террасы

Строганная доска, камерной сушки, 22 х 95 х 6000 мм (цвет - 9003)

Отделка ограждения террасы

сухая строганная доска 45х145мм (горизонтально в 4 ряда) с заводской покраской RAL - 9003

Антисептирование основания дома - (обвязка, лаги, черновые полы).

есть

включено

Ветиляционные грибки VILPE - 7024

есть

включено

Водосточная система Дёке пластиковая (цвет - Пломбир)

есть

включено

Снегозадержатели Гранд Лайн металлические RAL - 7024

есть

включено

Металлическая сетка от грызунов укладываем на черновой пол

есть

включено

Сборка каркаса на строительные гвозди (добавляем металлические усиленные уголки, пластины, крепим на жёлтые саморезы)

есть

включено

Монтаж теплого пола XL-pipe и полусухой стяжки внутри дома

есть

включено

 

  • Габариты дома
    8,0х12,0
  • Количество спален
    2
  • Терасса
    1
  • Общая площадь
    105 м2
  • Жилая площадь
    96 м2
  • Высота 1-го этажа
    2,95 м
  • Высота 2-го этажа
    0 м
  • Выстота в коньке крыши
    1,7 м
Описание
Стоимость теплого контура дома с доставкой и сборкой 5490000рублей.
Консультация с нашим экспертом
Поговорите с нашим специалистом — так мы быстрее поймём ваши задачи и найдём подходящее решение
Прикрепить файл
У нас есть другие варианты площади и планировки этого проекта!
Закажите рассчет проекта и мы подберем подходящий вам вариант.
Другие готовые объекты
Кировский район,
пос. Синявино
СНТ "ПетроКрепость"
Построен
от 02.01.2020
Смотреть все
Предыдущий объект Следующий объект
*/?>