Ломоносовский р-н, дер. Гостилицы

Строится
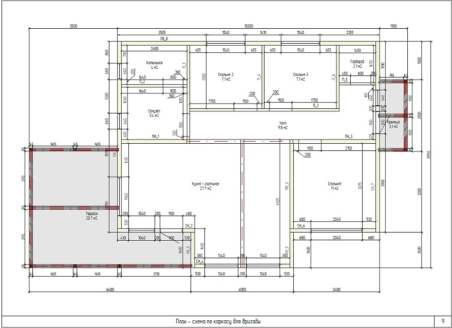
  • Габариты дома
    15х9
  • Общая площадь
    95 м2
  • Жилая площадь
    71 м2
Этажи: 1
Спальни: 3
Санузлы: 1
Заказать рассчет проекта
Характеристики

Одноэтажный каркасный дом 15000 х 9000 мм с террасой и крыльцом, по индивидуальному проекту

Высота потолка по силовому каркасу

2900 мм в чистоте по силовому каркасу (подготовка под стяжку)

Высота фронтона

1800мм от перекрытия потолка до конька

Силовая конструкция:

Обвязка дома

Обрезной брус 150х200 мм

Перекрытие пола

Доска обрезная, камерной сушки, 40х200мм

Перекрытие потолка

Доска обрезная, камерной сушки, 40х200мм

Стены наружные

Доска обрезная, камерной сушки, 40х150мм

Стропильная система

Доска обрезная, камерной сушки, 40х200мм

Несущие перегородки (при наличии)

Доска обрезная, камерной сушки, 40х150мм

Перегородки

Доска обрезная, камерной сушки, 40х100мм

Опорные столбы террас

Строганный брус (три штуки) 145 х 145 мм

Выносные балки (для террасы)

Строганный брус (три штуки) 145 х 145 мм

Ветрозащита (гидроизоляция) - наружный конутр дома

Фундамент

Рубероид в два два слоя

Перекрытие пола

Ондутис СМАРТ АМ

Стены наружные

Плита Белтермо 20 мм

Стропильная система

Ондутис СМАРТ АМ

Наружная отделка дома

Контр - рейка стен (по всем стойкам каркаса)

Доска камерной сушки 20х100мм

Контр - рейка стропильной системы

Брусок камерной сушки 40х50мм

Обрешетка стропильной системы (шаг 100мм)

Доска, камерной сушки 20х100мм

Отделка стен (снаружи - горизонтально)

Фиброцемент DECOVER

Отделка выносов кровли и лобовых

Перфорированные софиты (пломбир)

Кровля

Покрытие кровли

Металлочерепица 7024, толщиной 0,45 мм

Утепление

Стены наружные - 150 (мм)

Утеплитель Роквул СКАНДИК

Перекрытие пола - 200 (мм)

Утеплитель Роквул СКАНДИК

Перекрытие потолка - 200 (мм)

Утеплитель Роквул СКАНДИК

Несущие перегородки - 150 (мм) - при наличии

Утеплитель Роквул СКАНДИК

Перегородки - 100 (мм)

Утеплитель Роквул СКАНДИК

Пароизоляция

Вненшние стены (изнутри)

ONDUTISS ПК 150

Перекрытие полтолка (изнутри)

ONDUTISS ПК 150

Перегородки (с двух сторон)

ONDUTISS B

Проклейка стыков

Скотч Delta insidе

Внутренняя отделка

Контр - рейка потолка

Строганная рейка 20 х 45 х 6000 мм

Контр - рейка стен (по всем стойкам каркаса)

Строганная рейка 20 х 45 х 6000 мм

Отделка пола

Quick Deck Professional 22мм подготовка под стяжку

Двери и окна

ПВХ, РЕХАУ двухкамерный стеклопакет профиль 60 (мм). Согласно проектной документации

Двери входные 1 шт. - согласно проекта

Металлическая АРГУС ТЕРМО". 1шт. 860х2060 мм

Дверь ПВХ - входная на террасу

ПВХ стеклянная согласно проекта

Двери межкомнатные

Только проемы согласно проекта

Терраса и крыльцо (при наличии)

Столбы террасы (при наличии)

Строганный брус (три штуки) 145 х 145 мм

Кровля

Под отдельными кровлями

Ограждение террасы

Строганная доска 45 х 145 х 6000 мм - горизонтально

Потолок террасы подшивается по стропилам

Строганная доска 20х96х6000 мм

Пол террасы

Террасная доска хвоя вельвет 36х140мм

Дополнительно:

Водосточная система ДЕКЕ ПРЕМИУМ по двум скатами и 6 углам. (пломбир).

Система снегозадержания по всей длине оба ската 7024

Вентиляционные "грибки" на кровле и вент каналы кухня - гостиная, 2 с/у и котельная (серые)

Металлическая сетка от грызунов, по всей площади пола теплого контура

 

  • Габариты дома
    15х9
  • Количество спален
    3
  • Терасса
    2
  • Общая площадь
    95 м2
  • Жилая площадь
    71 м2
  • Высота 1-го этажа
    2,9 м
  • Высота 2-го этажа
    0 м
  • Выстота в коньке крыши
    1,5 м
Консультация с нашим экспертом
Поговорите с нашим специалистом — так мы быстрее поймём ваши задачи и найдём подходящее решение
Напишите Кириллу (нашему архитектору) в Max или Telegram
У нас есть другие варианты площади и планировки этого проекта!
Закажите рассчет проекта и мы подберем подходящий вам вариант.
Другие готовые объекты