Ломоносовский р-н, п.Ропша, КП "Ропшинские Поляны"

Построен
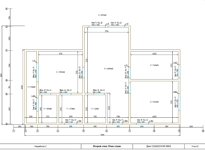
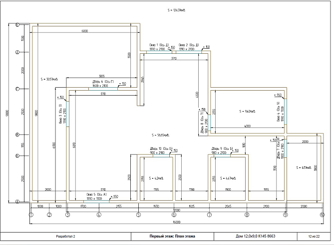
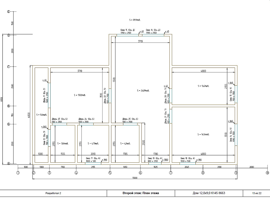
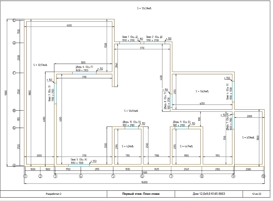
  • Габариты дома
    9,8х16,0
  • Общая площадь
    215 м2
  • Жилая площадь
    177 м2
Этажи: 2
Спальни: 4
Санузлы: 2
Заказать рассчет проекта
Характеристики

Стоимость дома в комплектации «тёплый контур» с доставкой и сборкой 6250000рублей

Размер сооружения общий (м)

16,0

9,8

Высота конька (м) / поднятие стены (м)

3,8м / поднятие стены полуторного этажа 1,7м

Толщина каркаса стен 1-ого и 1,5-го этажа (мм)

145х45 (шаг каркаса 0,59м) + плита Белтермо 20мм

в угловых соединениях ( раскосы, ригеля, доска 145х45мм)

Наименование материала

материал хвойных пород КАМЕРНОЙ СУШКИ

Высота потолка (м)

1 этаж по силовому каркасу

1,5-й этаж по силовому каркасу

3,00

3,00

Внешняя отделка:

Стены 1-ого и 1,5-го этажа

Имитатор бруса - горизонтально, камерной сушки 20 х 146 х 6000 мм (цвет – фиксируется дополнительным соглашением) + контробрешётка 45 х 45 х 6000

Фронтоны

Имитатор бруса - горизонтально, камерной сушки 20 х 146 х 6000 мм (цвет – фиксируется дополнительным соглашением) + контробрешётка 45 х 45 х 6000

Утеплитель:                                                                                           

утепление стен 1-ого этажа

150

Роквул Скандик

утепление пола 1-ого этажа (мм)

200

Роквул Скандик

утепление межэтажного перекрытия (мм)

200

Роквул Скандик

утепление стен 1,5-го этажа (мм)

150

Роквул Скандик

утепление потолка 1,5-го этажа и скатов (мм)

200

Роквул Скандик

Утепление перегородок

100

Роквул Скандик

Технические размеры:

Лаги (на террасе) (мм)

195х45 шаг 0,59м

камерной сушки

Перекрытие пола (мм)

195х45 шаг 0,59м

камерной сушки

Межэтажное перекрытие (мм)

195х45 шаг 0,59м

камерной сушки

Дополнительная обвязка из бруса (мм)

195 х 45 по всем оголовкам свай

камерной сушки

Стропила (размер бруса) (мм)

195х45 шаг 0,59м

камерной сушки

Ширина поднебесников (см)

500 мм

Обшивка поднебесников

Строганная доска, камерной сушки, 22 х 95 х 6000 мм (цвет - фиксируется дополнительным соглашением)

Внешние наличники, углы

Строганная доска, камерной сушки, 22 х 95 х 6000 мм (цвет - фиксируется дополнительным соглашением)

Ветро-влаго-защита / Пароизоляция

Ондутис Смарт АМ / Ондутис ПК 150 и Изоспан В (скотч для пароизоляции)

Внутренняя отделка:

Пол первого этажа

Строганная доска, сухая, 22 х 95 х 6000 мм, с шагом 100 (мм) + Шпунтованная влагостойкая плита Quick Deck 22 мм

Пол второго этажа

Строганная доска, сухая, 22 х 95 х 6000 мм, с шагом 100 (мм) + Шпунтованная влагостойкая плита Quick Deck 22 мм

Обрешетка потолка первый этаж

Строганная доска, сухая, 22 х 95 х 6000 мм, с шагом 300 (мм)

Обрешетка потолка второй этаж

Строганная доска, сухая, 22 х 95 х 6000 мм, с шагом 300 (мм)

Обрешетка стропильных скатов второй этаж

Строганная доска, сухая, 22 х 95 х 6000 мм, с шагом 300 (мм)

Контр - рейка стен (по всем стойкам каркаса)

Строганная рейка, сухая 30 х 45 х 6000 (мм)

Кровля:

Вид кровли

Согласно проекта (приложение № 2)

покрытие кровли

металлочерепица 0,5мм (RAL - фиксируется дополнительным соглашением) + контробрешётка брусок 45х45мм.

гидроизоляция / вентиляция кровли

Ондутис SMART AM/вентиляционные решётки

Двери:

 

Наименование

Кол-во (шт.)

Размер (м) (ш/в)

Дверь входная АРГУС-ТЕРМО

металлическая

По проекту

0,86х2,05м

Дверь ПВХ - балконная

ПВХ

По проекту

0,86х2,05м

Двери межкомнатные

проёмы

По проекту

0,89х2,09м

Перегородки:

Перегородки 1 этажа

каркасные утеплённые 100мм (каркас перегородок доска 45х95мм, камерной сушки)

Обшивка перегородок 1 этажа

Строганная рейка, сухая 30 х 45 х 6000 (мм)

перегородки 1,5-го этажа

каркасные утеплённые 100мм (каркас перегородок доска 45х95мм, камерной сушки)

Обшивка перегородок 1,5-го этажа

Строганная рейка, сухая 30 х 45 х 6000 (мм)

Окна:

 

Кол-во

Наименование

Окна и Дверь ПВХ REHAU BLITZ стеклопакеты двухкамерные и дверь ПВХ, с подоконниками 250мм, отливами 150мм, москитными сетками. Цвет белый, профиль 60мм

По проекту

окон ПВХ (согласно ПРОЕКТА)

По проекту

дверь ПВХ ВХОДНАЯ (согласно ПРОЕКТА)

Лестница

нет

Ступени при входе

есть (приставные, согласно проекта)

Бытовка + 4 блока:                                                                                                  есть (В ПОДАРОК)

Бытовка (размер) (м)

2,00

3,00

Электрика в бытовке

нет

Террасы и балкон:                                                                                                 есть 3 шт. (согласно проекта)

Крыша террасы и балкона – при наличии

Покрытие как на основной кровле дома

Пол террасы и балкона

сухая строганная доска 36х140мм "ВЕЛЬВЕТ" с заводской покраской террасным маслом цвет - фиксируется дополнительным соглашением (укладываем с зазором)

Потолок террасы и балкона

Строганная доска, камерной сушки, 22 х 95 х 6000 мм (цвет - фиксируется дополнительным соглашением)

Отделка ограждения террасы и балкона

сухая строганная доска 45х145мм (горизонтально в 4 ряда) с заводской покраской RAL - фиксируется дополнительным соглашением

Антисептирование основания дома - (обвязка, лаги, черновые полы) методом промазывания.

есть

включено

Водосточная система Дёке пластиковая (цвет - фиксируется дополнительным соглашением)

есть

включено

Снегозадержатели Гранд Лайн металлические RAL - фиксируется дополнительным соглашением

есть

включено

Металлическая сетка от грызунов укладываем на черновой пол

есть

включено

Сборка каркаса на строительные гвозди (добавляем металлические усиленные уголки, пластины, крепим на жёлтые саморезы)

есть

включено

 

 

  • Габариты дома
    9,8х16,0
  • Количество спален
    4
  • Терасса
    2
  • Общая площадь
    215 м2
  • Жилая площадь
    177 м2
  • Высота 1-го этажа
    3,0 м
  • Высота 2-го этажа
    3,0 м
  • Выстота в коньке крыши
    3,8 м
Описание
Стоимость дома в комплектации «тёплый контур» с доставкой и сборкой 6250000рублей
Консультация с нашим экспертом
Поговорите с нашим специалистом — так мы быстрее поймём ваши задачи и найдём подходящее решение
Напишите Кириллу (нашему архитектору) в Max или Telegram
У нас есть другие варианты площади и планировки этого проекта!
Закажите рассчет проекта и мы подберем подходящий вам вариант.
Другие готовые объекты