Кировский р-н, СНТ "Октябрьское"

Построен
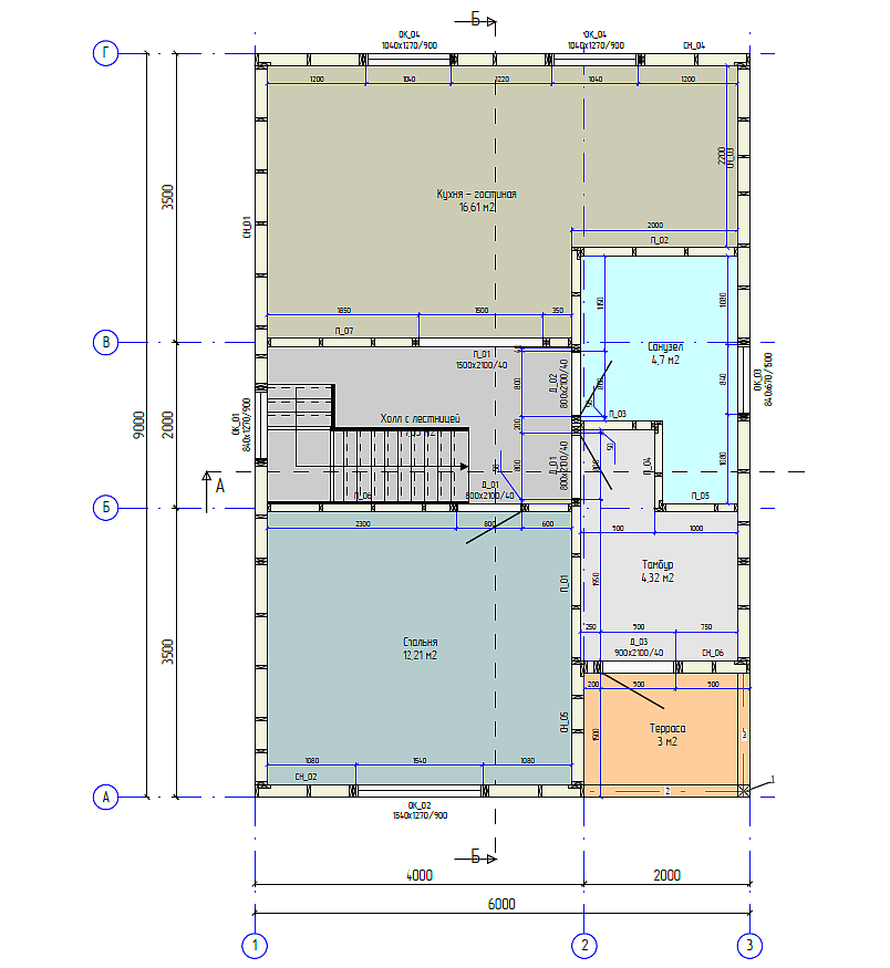
  • Габариты дома
    6х9
  • Общая площадь
    97 м2
  • Жилая площадь
    94 м2
Этажей: 2
Спален: 4
Санузла: 1
Заказать рассчет проекта
Характеристики

         Стоимость дома с доставкой и сборкой на участке 3650000рублей

Размер сооружения общий (м)

9,0

6,0

Высота конька (м)

3,4 от межэтажного перекрытия

Толщина каркаса стен 1-ого и мансардного этажа (мм)

 

150 х 40 (шаг каркаса 0,59м)

в угловых соединениях ( раскосы, ригеля, доска 150х40мм)

Наименование материала

материал хвойных пород КАМЕРНОЙ СУШКИ

 

Высота потолка (м)

 

1 этаж по силовому каркасу

Мансардный этажпо силовому каркасу

2,75

2,6

Внешняя отделка:

 

 

Стены наружные

 

Сайдинг Docke D6S - Кедр - горизонтально,) + контробрешетке 20 х 40 + МДВП плита Белтермо 20 мм.

 

 

Фронтоны

 

Сайдинг Docke D6S - Кедр - горизонтально,) + контробрешетке 20 х 40 + МДВП плита Белтермо 20 мм.

Утеплитель:

утепление стен 1-ого этажа

150

Роквул Скандик

утепление пола 1-ого этажа (мм)

200

Роквул Скандик

утепление межэтажного перекрытия (мм)

200

Роквул Скандик

утепление стен мансарды (мм)

150

Роквул Скандик

утепление потолка мансарды (мм)

200

Роквул Скандик

Утепление перегородок

100

Роквул Скандик

Технические размеры:

Лаги (на террасе) (мм)

200х40 шаг 0,59м

камерной сушки

Перекрытие пола (мм)

200х40 шаг 0,59м

камерной сушки

Межэтажное перекрытие (мм)

200х40 шаг 0,59м

камерной сушки

Дополнительная обвязка из бруса (мм)

200х150 шаг 0,59м

камерной сушки

Стропила (размер бруса) (мм)

150х40 шаг 0,59м

камерной сушки

Ширина поднебесников (см)

500 мм

Обшивка поднебесников

Перфорированные софиты – цвет - шоколад

Внешние наличники, углы

Пластиковые в комплекте с сайдингом – цвет - шоколад

Ветро-влаго-защита / Пароизоляция

МДВП плита Бедтермо 20мм/Ондутис Смарт АМ / Ондутис ПК 150 и Изоспан В (скотч для пароизоляции)

Внутренняя отделка:

 

Пол первого этажа

Строганная доска, сухая, 22 х 95 х 6000 мм, с шагом 100 (мм)

+ Шпунтованная влагостойкая плита Quick Deck 16 мм

 

Пол мансардного этажа

Строганная доска, сухая, 22 х 95 х 6000 мм, с шагом 100 (мм)

+ Шпунтованная влагостойкая плита Quick Deck 16 мм

 

Отделка стен и перегородок первый этаж

Горизонтально - Имитатор бруса 17 х 145 х 6000 мм по контр

- обрешетке 20 х 40

 

Отделка стен и перегородок мансардный этаж

Горизонтально - Имитатор бруса 17 х 145 х 6000 мм по контр

- обрешетке 20 х 40

 

Отделка потолка первый и мансардный этаж

Имитатор бруса 17 х 145 х 6000 мм по контр - обрешетке 20 х 40)

Кровля:

Вид кровли

Согласно проекта (приложение № 2)

 

покрытие кровли

металлочерепица 0,45мм (RAL – 8017 - коричневый) + контробрешётка брусок 40х50мм.

гидроизоляция / вентиляция кровли

Ондутис SMART AM/вентиляционные решётки

Двери:

 

 

Наименование

Кол- во (шт.)

Размер (м) (ш/в)



 

 

Дверь входная АРГУС-ТЕРМО

 

металлическая

По проекту

 

0,86х2,05м

Двери межкомнатные

проёмы

По проекту

0,89х2,09м

Перегородки:

 

Перегородки 1 этажа

каркасные утеплённые 100мм (каркас перегородок доска 40х100мм, камерной сушки)

 

Обшивка перегородок 1 этажа

Горизонтально - Имитатор бруса 17 х 145 х 6000 мм по контр

- обрешетке 20 х 40

 

перегородки мансарды

каркасные утеплённые 100мм (каркас перегородок доска 45х95мм, камерной сушки)

 

Обшивка перегородок мансарды

Горизонтально - Имитатор бруса 17 х 145 х 6000 мм по контр

- обрешетке 20 х 40

Окна:

 

Кол-во

Наименование

Окна ПВХ REHAU BLITZ стеклопакеты двухкамерные, с подоконниками 250мм,

отливами 150мм, москитными сетками на все

поворотно – откидные створки. Цвет белый, профиль 70мм

 

По проекту

 

окон ПВХ (согласно ПРОЕКТА)

Лестница

Одномаршевая, деревянная, качественная с перилами и балясинами (максимально пологая)

 

Ступени при входе

 

есть (приставные, согласно проекта)

Бытовка + 4 блока:                                                                                           есть (В ПОДАРОК)

Бытовка (размер) (м)

2,00

3,00

Электрика в бытовке

нет

Терраса:                                                                                         есть 1 шт. (согласно проекта)

Крыша террасы

Под общей кровлей

 

Пол террасы и балкона

сухая строганная доска 36х140мм "ВЕЛЬВЕТ" – без покраски.

Потолок террасы и балкона

Перфорированные софиты – цвет - шоколад

 

Отделка ограждения террасы и балкона

сухая строганная доска 45х145мм (горизонтально в 4 ряда) с заводской покраской RAL - фиксируется дополнительным

соглашением

 

Антисептирование основания дома - (обвязка, лаги, черновые полы) методом промазывания.

 

 

есть

 

 

включено

 

Водосточная система Дёке пластиковая (цвет - белый)

 

 

есть

 

 

включено

 

Металлическая сетка от грызунов укладываем на черновой пол, с заходом на стены

 

 

есть

 

 

включено

Сборка каркаса на строительные гвозди

(добавляем металлические усиленные уголки, пластины, крепим на жёлтые саморезы)

 

 

есть

 

 

включено

  • Габариты дома
    6х9
  • Количество спален
    4
  • Терасса
    1
  • Общая площадь
    97 м2
  • Жилая площадь
    94 м2
  • Высота 1-го этажа
    2,7 м
  • Высота 2-го этажа
    2,5 м
  • Выстота в коньке крыши
    3,4 м
Описание
Стоимость дома с доставкой и сборкой на участке 3650000рублей
Консультация с нашим экспертом
Поговорите с нашим специалистом — так мы быстрее поймём ваши задачи и найдём подходящее решение
Прикрепить файл
У нас есть другие варианты площади и планировки этого проекта!
Закажите рассчет проекта и мы подберем подходящий вам вариант.
Другие готовые объекты
Кировский район,
пос. Синявино
СНТ "ПетроКрепость"
Построен
от 02.01.2020
Смотреть все
Предыдущий объект Следующий объект
*/?>