Всеволожский р-н, СНТ "Рахья"

Построен
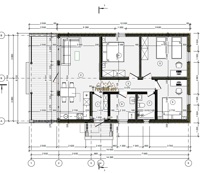
  • Габариты дома
    7,8х14,3
  • Общая площадь
    111 м2
  • Жилая площадь
    89 м2
Этажей: 1
Спален: 3
Санузла: 1
Заказать рассчет проекта
Характеристики

           Стоимость тёплого контура дома с доставкой и сборкой 6290000 рублей (без учёта фундамента)

 

Одноэтажный дом БАРН габаритами 14,3 х 7,8м, по проекту Д-192. Теплый Контур.

Силовая конструкция дома

Перекрытие пола

нет

Стены наружные

Строганная доска сухая, сечением 145 х 45 х 6000мм

Стропильная система

Строганная доска сухая, сечением 195 х 45 х 6000 мм

Перегородки

Строганная доска сухая, сечением 95 х 45 х 6000 мм

и 145 х 45 х 6000мм

Ветрозащита - наружный контур дома

Перекрытие пола

нет

Стены наружные

Ондутис SMART AM

Стропильная система

 

Ондутис SMART AM

Наружная отделка дома

Черновой пол

Обрезная доска 20 х 100 х 6000 + обрезной брусок 40 х 50 х 6000

Контр - рейка стен (по всем стойкам каркаса)

Строганная рейка 20 х 40 х 6000 мм

Контр - рейка стропильной системы

Обрезной брусок 40 х 50 х 6000 мм

Обрешетка стропильной системы (шаг 100мм)

Обрезная доска 20 х 100 х 6000 мм

Отделка стен (снаружи) - цвет на выбор из палитры

Клик фальц, частично планкен

Отделка лобовых

Строганная доска 20 х 96 х 6000 (мм)

Кровля

Покрытие кровли

Клик фальц

 

 

Утепление

Перекрытие пола

нет

Стены наружные – 150 + 50 (мм)

Базальтовая вата в плитах ROCWOOL - Скандик – 3 + 1 слоя по 50 мм

Стропильная система – 200 + 50 (мм)

Базальтовая вата в плитах ROCWOOL - Скандик – 4 + 1 слоя по 50 мм

Перегородки - 100 (мм)

Базальтовая вата в плитах ROCWOOL - Скандик – 2 и 3 слоя по 50 мм

Пароизоляция

Перекрытие пола (изнутри)

Delta Dawi GP

Вненшние стены (изнутри)

Delta Dawi GP

Потолок по стропилам (изнутри)

Delta Dawi GP

Перегородки (с двух сторон)

Delta Dawi GP

Проклейка стыков

Скотч Delta красный

Двери и окна

Окна ПВХ - 2х камерный стеклопакет, профиль 60мм

размеры согласно проектной документации

Дверь входная

ПВХ входная, размеры согласно проектной документации

Двери межкомнатные

Только проемы

Тераса и крыльцо

Столбы террасы

кленный брус 145 х 145 х 6000 мм

Пол террасы

нет

Потолок террасы

Строганная доска 20 х 96 х 6000 (мм)

Расширение комплектации:

Заводская покраска

Наружная отделка стен - планкен

 

  • Габариты дома
    7,8х14,3
  • Количество спален
    3
  • Терасса
    2
  • Общая площадь
    111 м2
  • Жилая площадь
    89 м2
  • Высота 1-го этажа
    2,8 м
  • Высота 2-го этажа
    0 м
  • Выстота в коньке крыши
    1 м
Консультация с нашим экспертом
Поговорите с нашим специалистом — так мы быстрее поймём ваши задачи и найдём подходящее решение
Прикрепить файл
У нас есть другие варианты площади и планировки этого проекта!
Закажите рассчет проекта и мы подберем подходящий вам вариант.
Другие готовые объекты
Кировский район,
пос. Синявино
СНТ "ПетроКрепость"
Построен
от 02.01.2020
Смотреть все
Предыдущий объект Следующий объект
*/?>