Кировский район, деревня Лезье

Построен
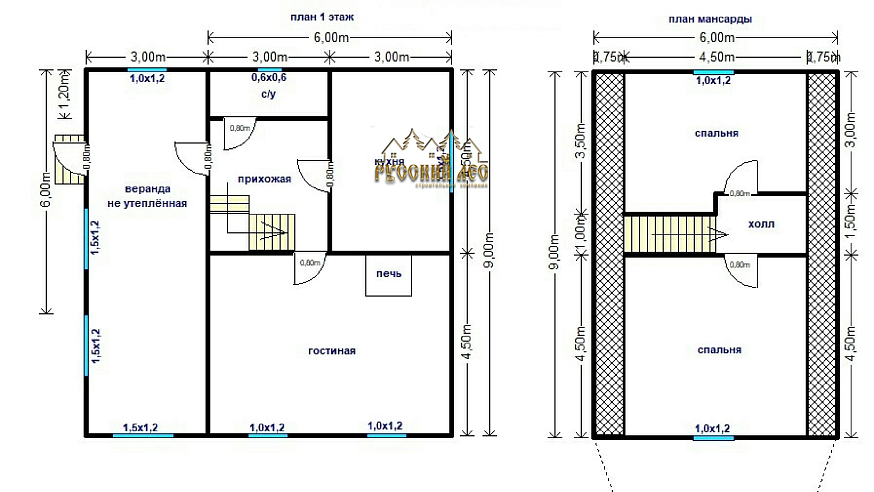
  • Габариты дома
  • Общая площадь
    121 м2
  • Жилая площадь
    м2
Этажи:
Спальни:
Санузлы:
Заказать рассчет проекта
Характеристики
  • Общая площадь
    121 м2
Описание

Стоимость каркасного дома с доставкой и сборкой 1199 000 рублей (Возможно внесение изменений с перерасчетом стоимости). Фундамент и инженерные коммуникации в стоимость не входят, рассчитываются дополнительно.

Консультация с нашим экспертом
Поговорите с нашим специалистом — так мы быстрее поймём ваши задачи и найдём подходящее решение
Напишите Кириллу (нашему архитектору) в Max или Telegram
У нас есть другие варианты площади и планировки этого проекта!
Закажите рассчет проекта и мы подберем подходящий вам вариант.
Другие готовые объекты