Каталог проектов
Каркасные одноэтажные дома
Каркасные двухэтажные дома
Построенные дома
Отзывы
О компании
О нас
Технологии
Инженерия
Ипотека ЭСКРОУ (Ф3. 186)
Материнский капитал
Разрешение на строительство
(Закон 340 ФЗ)
Документы
Вопрос - ответ
Контакты
Заказать звонок
8 (800) 775 16 79
Бесплатно по России
8 (921) 090 40 40
sale@skrusles.ru
Каркас
Брус
Сруб
Бани
Фундамент
Печи
Отделка
Инженерия
Главная
/
Каркасные дома
/
Каркасные двухэтажные дома
/
Проект каркасного дома Д-197
Предыдущий проект
Следующий проект
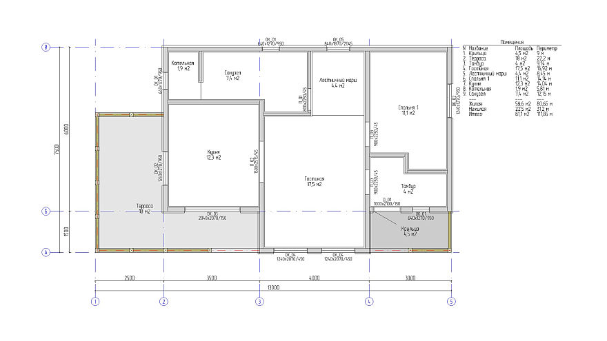
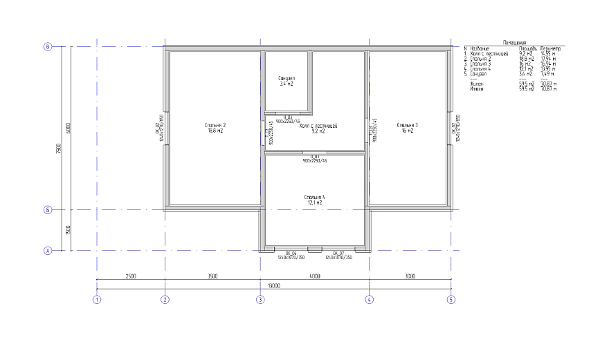
Проект каркасного дома Д-197
Габариты дома
13,0х7,5
Общая площадь
165 м
2
Жилая площадь
142 м
2
Этажи:
2
Спальни:
4
Санузлы:
2
Закрытый контур
4 350 000 р.
Теплый контур
5 690 000 р.
С отделкой
по запросу
Планировка
Возможные комплектации
Закрытый контур
4 350 000 р.
Теплый контур
5 690 000 р.
С отделкой
по запросу
Индивидуальная перепланировка дома
Сборка на участке
Архитектурное решение
Камерная сушка всего пиломатериала
Обвязка основания:
Пакет из строганной доски 45х145мм (3шт)
Строганная доска 45х195мм (шаг не более 590мм)
Металлическая сетка от грызунов (по всей площади утепляемого пола)
Силовой каркас капитальных стен:
Вертикальные стойки – строганная доска сечением 45x145 мм, шаг не более 590 мм
Ригель – строганная доска сечением 45x145 мм
Укосины (раскосы) – строганная доска сечением 45x145 мм
Обвязочный нижний пояс – строганная доска сечением 45x145 мм
Обвязочный верхний пояс – строганная доска сечением 45x145 мм
Второй верхний обвязочный пояс - строганная доска сечением 45x145 мм
Силовой каркас внутренних перегородок:
Вертикальные стойки – строганная доска сечением 45x95 мм, шаг не более 590 мм
Ригель – строганная доска сечением 45x95 мм
Укосины (раскосы) – строганная доска сечением 45x95 мм
Обвязочный нижний пояс – строганная доска сечением 45x95 мм
Обвязочный верхний пояс – строганная доска сечением 45x95 мм
Второй верхний обвязочный пояс - строганная доска сечением 45x95 мм
Пол 1-го этажа:
Перекрытие пола – строганная доска сечением 45х195 мм, шаг не более 590 мм
Пол 2-го этажа:
Межэтажное перекрытие – строганная доска сечением 45х195 мм, шаг не более 590 мм
Стропильная система:
Потолочные балки – строганная доска сечением 45х195 мм, шаг не более 590 мм
Стропильные ноги – строганная доска сечением 45х195 мм, шаг не более 590 мм
Коньковая доска – строганная доска сечением 45х195 мм, шаг не более 590 мм (сдвоенная согласно проекта)
Наружная отделка:
Сухая имитация бруса 20х145 мм СКАНДИНАВСКИЙ ПРОФИЛЬ или КАРЕЛЬСКИЙ ПРОФИЛЬ
Контробрешетка – вентиляционный зазор – строганный брусок сечением 20x45 мм
Наличники, углы – строганная доска сечением 20x95 мм
Ветровлагозащита – МДВП плита БЕЛТЕРМО ТОР 20мм
ЗАВОДСКАЯ ПОКРАСКА (1 слой грунт + 2 слоя покраска) цвет на выбор
Кровля:
Покрытие – металлочерепица, толщина 0,5 мм
Обрешетка – строганная доска сечением 20x95 мм
Контробрешетка – вентиляционный зазор – строганный брусок сечением 45x45 мм
Подкровельная антиконденсатная пленка ОНДУТИС ПРО АМ 130
Поднебесники (свесы крыши) - строганная доска 20х95 мм (с зазором)
Водосточная система Дёке Премиум
Снегозадержатели Гранд Лайн
Утепление:
Внешние стены – 150 мм (плитный)
Перекрытие 1-ого этажа – 200 мм (плитный)
Потолок - 200 мм (плитный)
Перегородки – 100 мм (плитный)
Внутренняя отделка, комбинированая:
Пароизоляция внешних стен, перекрытия пола, потолка – Ондутис ПК 150 (проклейка швов скотчем)
Пароизоляция перегородок - Изоспан В
Стены, перегородки, потолки – сухая имитация бруса 16х145мм СКАНДИНАВСКИЙ ПРОФИЛЬ или КАРЕЛЬСКИЙ ПРОФИЛЬ
Настил полов:
Плита Квик Дек 22мм (шип-паз)
Обрешётка сухая строганная доска 20х95 мм (шаг через доску)
Черновой пол:
Строганная доска сечением 20x95 мм (шаг через доску)
Окна:
ПВХ REHAU BLITZ, профиль 60 мм, фурнитура Roto NT, белый цвет, двухкамерный стеклопакет, поворотно-откидные створки
Отливы металлические (150 мм), подоконники пластиковые (200 мм)
Откосы - строганная доска 20х95 мм
Двери:
Входная – металлическая с терморазрывом Аргус-Термо
Межкомнатные - проёмы
Лестница:
при наличии второго этажа:
Деревянная (клееные тетивы, ступени, стартовые столбы, перила, балясины) согласно проекта
Антисептирование:
Neomid 430 – обвязка, перекрытие пола, черновой пол (в заводских условиях)
Крепеж:
Болты, саморезы, пластины оцинкованные, уголки оцинкованные, гвозди ершенные, гвозди, финишные гвозди, строительные гвозди
Терраса и крыльцо:
Пол – террасная доска 36х140мм "Вельвет" (с зазором)
Потолок – строганная доска 20х96мм (с зазором)
Ограждение – строганная доска 45х145мм (параллельно в 4 ряда).
Опорные столбы - строганная доска 45х145 мм (пакет из 3шт)
Вентиляция:
Вентиляционные выводы Vilpe (110мм, 125мм)
Строительная бытовка 2х3 метра
Консультация с нашим экспертом
Поговорите с нашим специалистом — так мы быстрее поймём ваши задачи и найдём подходящее решение
Напишите Кириллу (нашему архитектору) в Max или Telegram
Написать в Telegram
Написать в Max
У нас есть другие варианты площади и планировки этого проекта!
Закажите рассчет проекта и мы подберем подходящий вам вариант.
Написать в Telegram
Написать в Max
Построенные дома
Гатчинский р-н, СНТ "Градостроитель"
Строится
от 13.05.2026
Ломоносовский р-н, дер. Гостилицы
Строится
от 23.04.2026
Всеволожский р-н, массив Грузино
Построен
от 27.03.2026
Выборгский р-н, пос. Рощино
Построен
от 01.12.2025
Сланцевский р-н, деревня Гостицы
Построен
от 25.11.2025
Тосненский р-н, пос. Ульяновка
Построен
от 01.11.2025
Кировский р-н, СНТ "Октябрьское"
Построен
от 20.10.2025
Ломоносовский р-н, п.Ропша, КП "Ропшинские Поляны"
Построен
от 05.09.2025
Выборгский р-н, КП "Огоньково"
Построен
от 05.08.2025
Всеволожский р-н, СНТ "Рахья"
Построен
от 14.07.2025
Ломоносовский р-н, КП Кузнецы (ЭСКРОУ №3)
Построен
от 10.06.2025
Тосненский р-н, КП Новая Ладога
Построен
от 06.05.2025
Всеволожский р-н, массив им. Морозова, СНТ "Орешек-2"
Построен
от 01.04.2025
Лужский район, деревня Сорочкино
Построен
от 18.02.2025
Ломоносовский р-н, КП Кузнецы (ЭСКРОУ №2)
Построен
от 03.02.2025
Волосовский р-н, КП Новосельцево
Построен
от 21.11.2024
Приозерский р-н, деревня Хвойное
Построен
от 24.09.2024
Волосовский р-н, КП Новосельцево-2
Построен
от 12.09.2024
Выборгский р-н, пос. Приветнинское (ЭСКРОУ №1)
Построен
от 27.08.2024
Приозерский р-н, дер-ня Четвертяково
Построен
от 30.07.2024
Ломоносовский р-н, урочище Брандовка
Построен
от 29.07.2024
Кировский р-н, Синявино, СНТ "Восход"
Построен
от 24.06.2024
Санкт-Петербург, пос. Левашово, территория Новосёлки
Построен
от 12.06.2024
Всеволожский р-н, массив Белоостров, СНТ "Светлана-1"
Построен
от 28.05.2024
Смотреть все
Предыдущий объект
Следующий объект
Получить консультацию
Написать в Telegram
Написать в Max
Продолжая пользоваться сайтом, вы соглашаетесь на обработку файлов cookie и других пользовательских данных в соответствии с
политикой конфиденциальности
. Заблокировать использование cookies сайтом можно в настройках браузера.
Понятно